Kontor på 400 m2 i Hobro, Smedevej

Økonomi

Månedlig leje

0 KR.

Aconto vand

Inkl. i lejen

Aconto varme

Inkl. i lejen

Depositum

0 KR.

Forudbetalt leje

0 KR.

Samlet udgift*

0 KR.

* inkl. første måneds husleje

Beskrivelse

Unik Arkitekttegnet Domicil med Uendelige Muligheder – Leje af Sjælden Erhvervsejendom i Hobro Syd

Drømmer du om at placere din virksomhed i en ejendom, der både udstråler kvalitet, funktionalitet og mulighed for vækst? Denne sjældne, arkitekttegnede erhvervsejendom er din chance for at skabe noget episk. Beliggende i det attraktive erhvervsområde Hobro Syd, hvor industrien og handelslivet blomstrer, får du her ikke bare et lejemål – du får en ny base for din virksomheds fremtid.

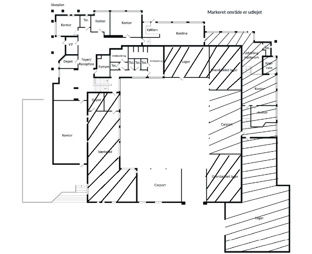
Med 1250 m² stilfuldt udnyttet plads, hvoraf 400 m² kontor stadig er tilgængelige, åbner dørene sig for en verden af muligheder. Ejendommen er indrettet med stor opmærksomhed på både æstetik og funktion – solidt håndværk, smukke materialer og en perfekt balance mellem rummelighed og detaljer.

Ejendommens hjerte består af flere kontor- og mødelokaler, der kan tilpasses til enhver virksomheds behov – fra det kreative kontormiljø til professionelle mødelokaler. De moderne faciliteter omfatter et fuldt udstyret køkken og kantine, samt toiletter og omklædningsrum, der giver komfort og praktisk funktionalitet for dine medarbejdere.

Derudover er der hele 2 isolerede haller tilknyttet lejemålet, perfekt til lager, produktion eller opbevaring. Her får du et stort vækstpotentiale og et lejemål, der kan rumme mange funktioner – uanset om du er en webshop, offentlig institution, undervisningssted, klinikspecialist eller noget helt andet.

Områdets strategiske beliggenhed giver ekstra værdi – kun 3 km fra E45, den jyske motorvej, er ejendommen nemt tilgængelig for både kunder og medarbejdere. Samtidig er der fantastiske parkeringsmuligheder, både rundt om ejendommen og i den indbydende atriumgård, hvilket sikrer nem adgang og komfort for alle besøgende.

Er du klar til at tage skridtet? De ledige kvadratmeter er markeret med en rød linje på plantegningen, og med kun en lille del af ejendommen tilbage, skal du handle hurtigt.

Dette er ikke bare et lejemål – det er en mulighed for at placere din virksomhed i en bygning, der ikke bare understøtter din nuværende drift, men også giver dig de perfekte rammer for at udvikle og udvide fremadrettet.

Kontakt os i dag for en fremvisning og lad os vise dig, hvordan denne enestående erhvervsejendom kan blive din virksomheds næste epoke.

Øvrige oplysninger

Lejeperiode

Ubegrænset

Ledig fra

Snarest muligt

Areal

400 m2

Altid gratis kontakt til udlejer

Alle udlejere på sitet er medlemmer af interesseorganisationen Danske Udlejere. Vi arbejder med professionelle udlejere og hører gerne fra dig, hvis du mod forventning oplever andet.

Rapportér et problem.

UDLEJER:  Ole Mejlstrup.dk