Erhverv på 10 m2 i Vordingborg, Nyraad Hovedgade

Økonomi

Månedlig leje

650 KR.

Aconto vand

250 KR.

Aconto varme

350 KR.

Depositum

3.900 KR.

Forudbetalt leje

0 KR.

Samlet udgift*

5.150 KR.

* inkl. første måneds husleje

Beskrivelse

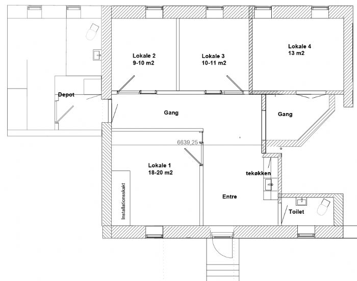
Ledige lokaler i historiske omgivelser I det gamle bryggeri er de ny renoveret lokaler delt op til kontorfællesskab hvor man kan bruge de enkelte lokaler til hvad der passer ind i ens erhverv. Lokale 1 - 61L (19 M2) Lokale 2 - 61L (10 M2) Lokale 3 - 61L (11 m2) Lokale 4 - 61L (13 m2) Er beliggende med fælles indgang fra gårdmiljø med hvor entré/tekøkken byder indenfor med lys indretning og mørke tæpper som går godt i spænd med de bærende bjælker. Prisen er inkl. adgang til fælles entre, tekøkken og støre depot hvor der er omklæd/bad og ekstra toilet. 49 kr. m2 ex. forbrug.

Øvrige oplysninger

Lejeperiode

Ubegrænset

Ledig fra

Snarest muligt

Areal

10 m2

Altid gratis kontakt til udlejer

Alle udlejere på sitet er medlemmer af interesseorganisationen Danske Udlejere. Vi arbejder med professionelle udlejere og hører gerne fra dig, hvis du mod forventning oplever andet.

Rapportér et problem.