Butik på 114 m2 i Herning, Søndergade

Økonomi

Månedlig leje

12.600 KR.

Aconto vand

100 KR.

Aconto varme

400 KR.

Depositum

37.800 KR.

Forudbetalt leje

0 KR.

Samlet udgift*

50.900 KR.

* inkl. første måneds husleje

Beskrivelse

I Hernings absolutte centrum ved gågadekryds,torv og hovedbibliotek udlejes butik. Butikken ligger i starten af Søndergade, der er den primære forbindelse fra hotel, torv, kirke m.m. til busterminal, biograf og jernbanestation.

Øvrige oplysninger

Lejeperiode

Ubegrænset

Ledig fra

Snarest muligt

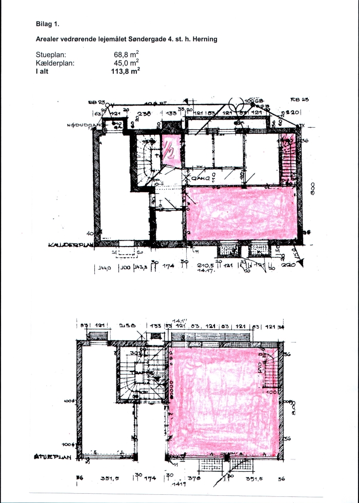
Areal

114 m2

Altid gratis kontakt til udlejer

Alle udlejere på sitet er medlemmer af interesseorganisationen Danske Udlejere. Vi arbejder med professionelle udlejere og hører gerne fra dig, hvis du mod forventning oplever andet.

Rapportér et problem.